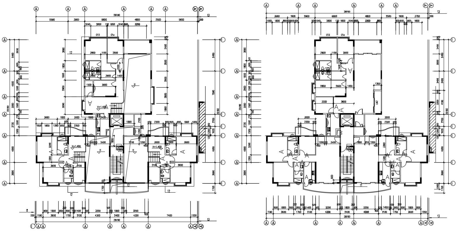
3 BHK Apartment Layout Plan DWG File for AutoCAD Use
Description
3 BHK Apartment Layout Plan AutoCAD File; The architecture 3 BHK apartment layout plan cluster drawing with dimension detail in AutoCAD format. download AutoCAD file of the apartment plan and get more details in CAD drawing.
Uploaded by:

