LOGIN
HOME
CATEGORIES
UPLOAD FILE
PRICING
HOUSE PLAN
ABOUT US
CONTACT US
Office AutoCAD Plan Details
Home
Categories
Architecture
Corporate Building
Office AutoCAD Plan Details
Uploaded by:
Poonam
View Profile
View Profile
Description
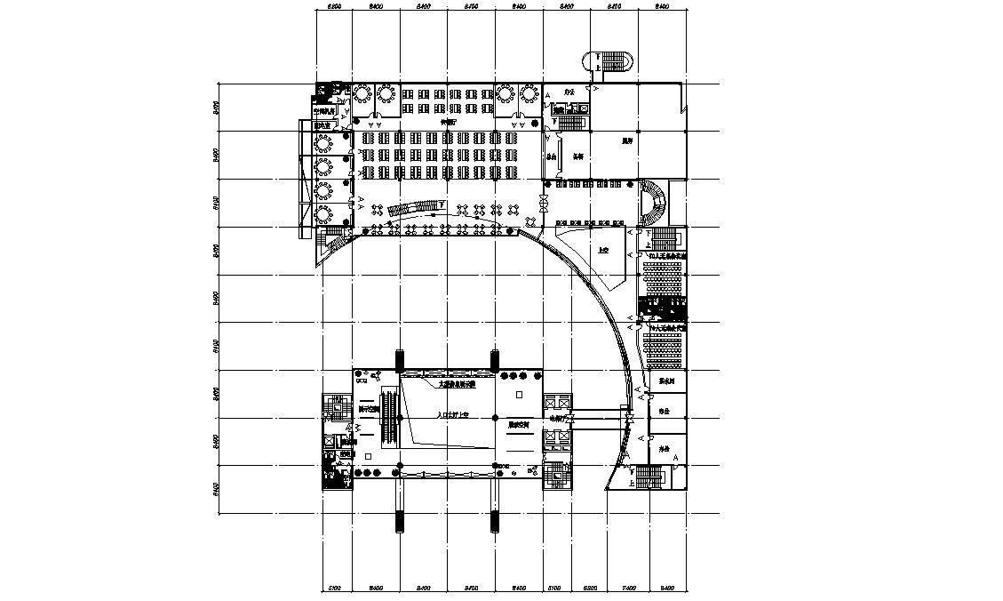
Office autocad plan which includes the details of the work station along with the private cabins, wash area, canteen, and many more. It also shows the dimension details.
File Type:
DWG
File Size:
416 KB
Category::
Architecture
Sub Category::
Corporate Building
type:
Gold
Uploaded by:
Poonam
View Profile
Download
Add to libary
find Latest
Related
Files