70 Square Meter Office Plan With Employee Bedrooms Plan DWG File
Description
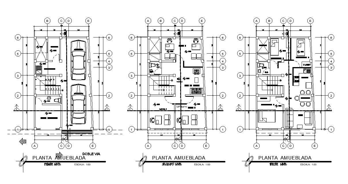
10X7 meter office ground floor, first floor and second floor plan with furniture layout design that shows parking lot, office cabin with computer work desk, reception area, toilet, and bedrooms for employees. the additional drawing such as center line plan with dimension detail. Thank you for downloading the AutoCAD file and other CAD program from our website.
Uploaded by:

