Apartment Design Plans With Furniture Layout AutoCAD File Free
Description
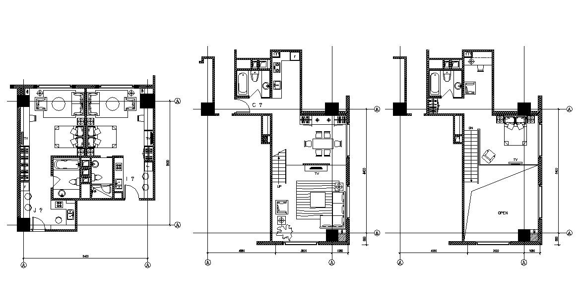
Apartment Design Plans With Furniture Layout AutoCAD File Free; this is the different type of plan of apartment with fully furnished, dimension, its a one BHK studio apartment kind of , IN CAD format.
Uploaded by:
Rashmi
Solanki
