Download The Ceiling Layout Plan Of Commercial Building DWG File
Description
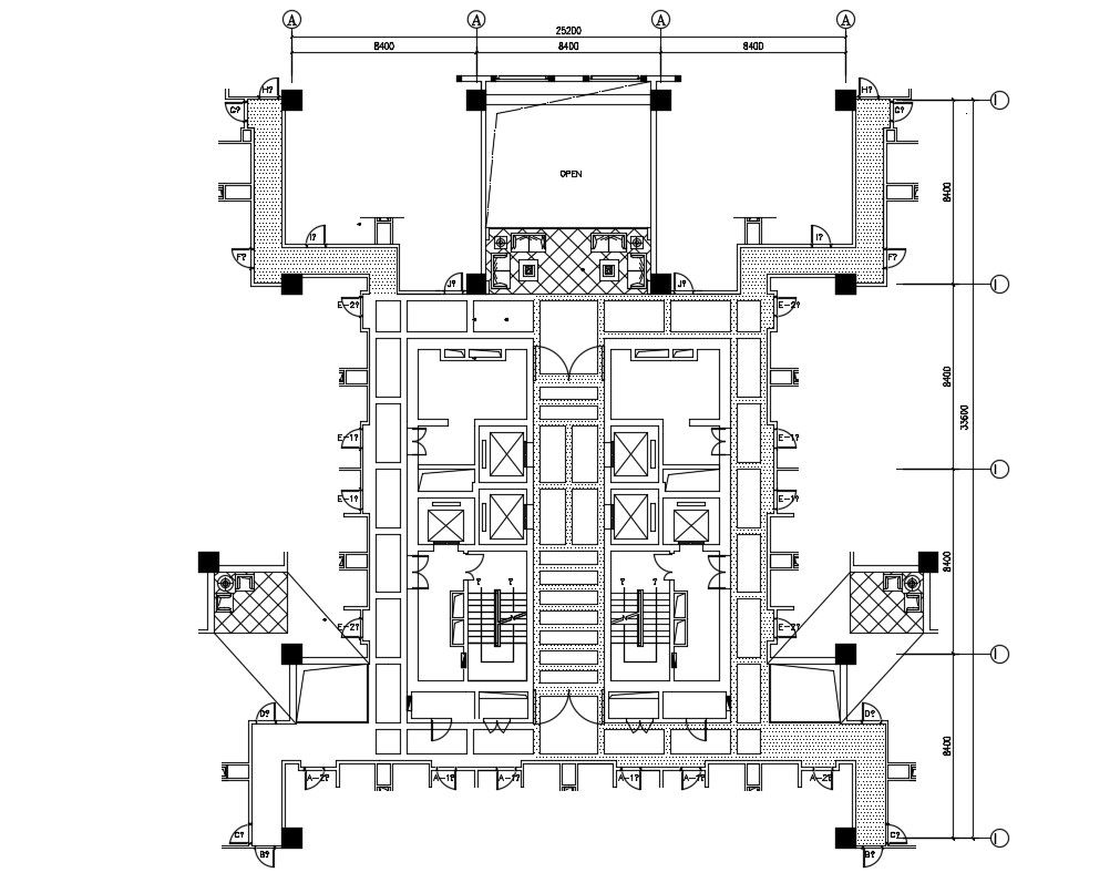
Download The Ceiling Layout Plan Of Commercial Building DWG File; this is the ceiling design plan of commercial building induces furniture design of a lounge, stair and lift detail, dimension, centerline,2D CAD drawing format.
Uploaded by:
Rashmi
Solanki

