Furnished Commercial Building Designs AutoCAD File Free
Description
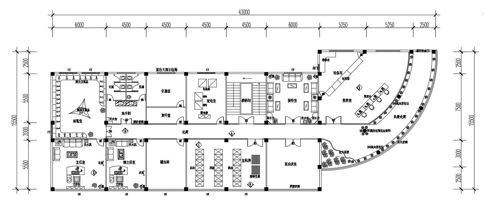
Furnished Commercial Building Designs AutoCAD File Free; this is the commercial building plan with furniture layout plan, individual office design, working dimension plan, restroom sanitary detail, waiting area, a plantation in the main foyer, big openings, stair, and much more other detail, in CAD format.
Uploaded by:
Rashmi
Solanki

