Commercial Building Plan With Working Drawing AutoCAD File

Commercial Building Plan With Working Drawing  AutoCAD  File
Profile

Uploaded by:

Rashmi

Solanki

Description
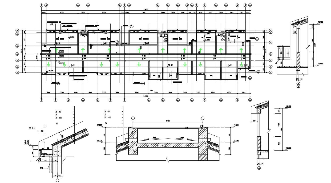
Commercial Building Plan With Working Drawing AutoCAD File; this is the commercial building plan includes working drawing, dimension detail, texting detail, also roof wall section with water tranch, roof surface material detail, floor dimension detail, window section, and other more detail related to section, in DWG file format.
Profile

Uploaded by:

Rashmi

Solanki

find Latest

Related Files

WhatsApp Chat