Free Download Different Furniture Lay Out Of Bungalow AutoCAD File
Description
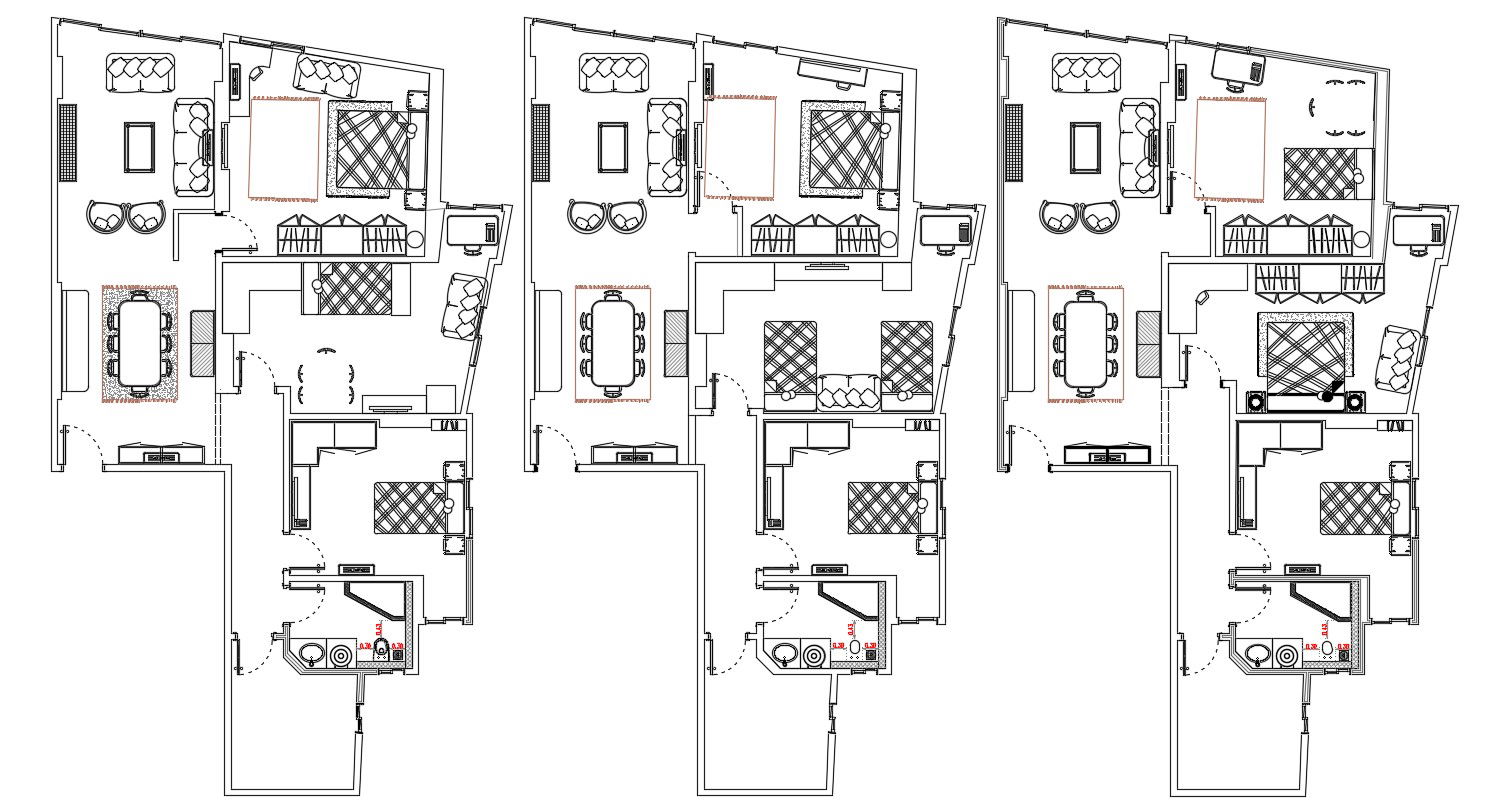
Free Download Different Furniture Lay Out Of Bungalow AutoCAD File; this is the furniture layout plan of the bungalow, it's a three-option of furniture plan in this plan added the drawing-room, dining area, bedroom with attached toilet detail, study room, in CAD file format.
File Type:
DWG
File Size:
679 KB
Category::
Interior Design
Sub Category::
Bungalows Exterior And Interior Design
type:
Free
Uploaded by:
Rashmi
Solanki
