LOGIN
HOME
CATEGORIES
UPLOAD FILE
PRICING
HOUSE PLAN
ABOUT US
CONTACT US
Master bed room Interior design
Home
Categories
Interior Design
Bedroom Interiors
Master bed room Interior design
Uploaded by:
Harriet
Burrows
View Profile
View Profile
Description
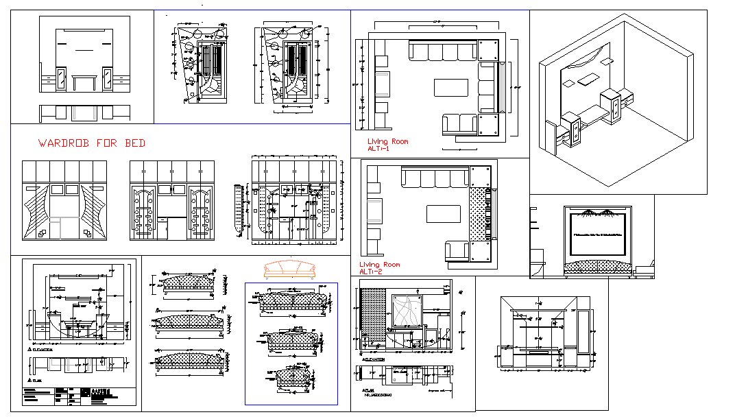
Sofa set, T.V unit & bed all Elevation design include dimension design. Sofa all side section detail.
File Type:
DWG
File Size:
486 KB
Category::
Interior Design
Sub Category::
Bedroom Interiors
type:
Gold
Uploaded by:
Harriet
Burrows
View Profile
Download
Add to libary
find Latest
Related
Files