2D CAD Drawing Layout Plan Of Plotting AutoCAD File Free Download
Description
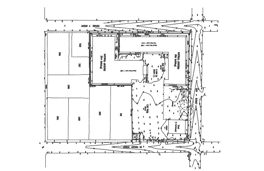
2D CAD Drawing Layout Plan Of Plotting AutoCAD File Free Download; this is the simple plan of plotting attached with the main road, includes national achievers plot, car parking, guard hut, three side road of the plot, this is the DWG file,
Uploaded by:
Rashmi
Solanki

