2D CAD Drawing Simple Bungalow House Design AutoCAD File
Description
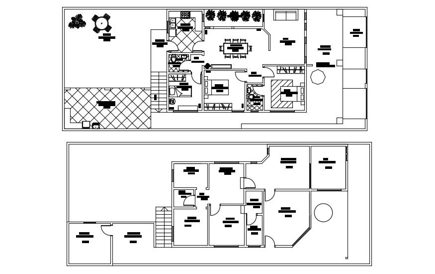
2D CAD Drawing Simple Bungalow House Design AutoCAD File; this is the bungalow plan of two floor includes garden area, outer side kitchen for party zone, drawing room, dining room, kitchen, common toilet, three-bedrooms, inside the planter area, this is on the ground floor, four-bedrooms, terrace , attached toilets, lounge, storeroom, all this on the first floor,its a DWG file format.
Uploaded by:
Rashmi
Solanki
