Basketball Stadium Plan AutoCAD File
Description
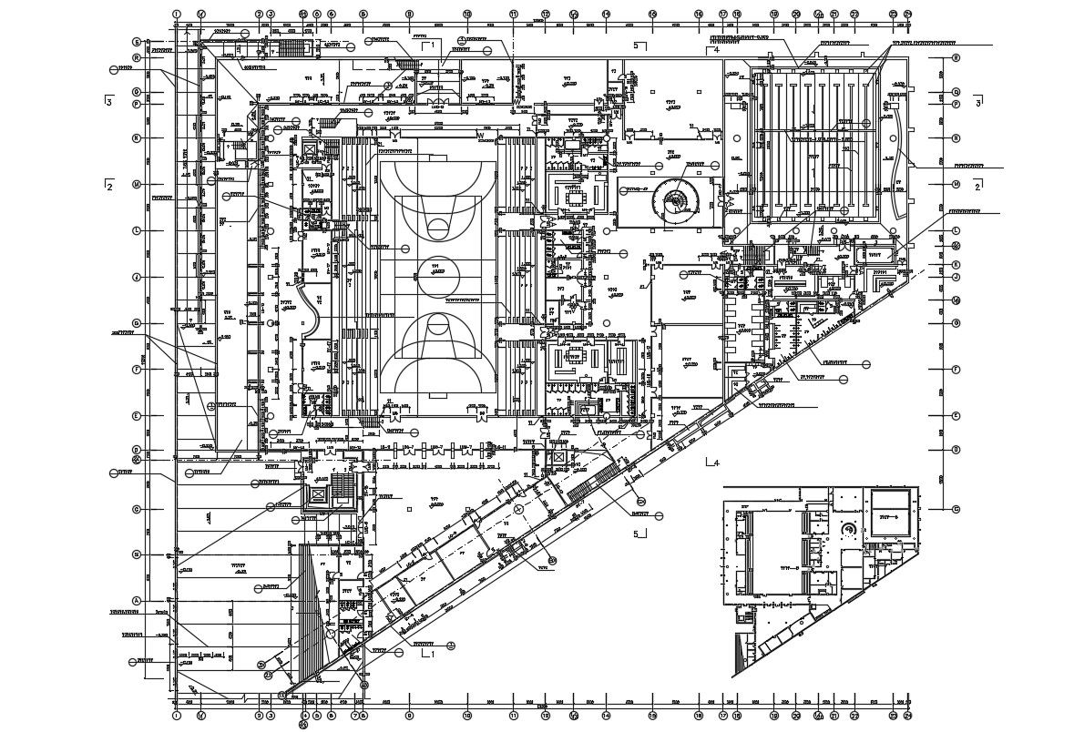
Basketball Stadium Plan AutoCAD File; The architecture stadium project CAD drawing of a basketball layout plan shows playground, stadium, seating arrangement, coaching room, coordinator hall and cafeteria with all dimension details. download DWG file of the basketball project AutoCAD file.
Uploaded by:
