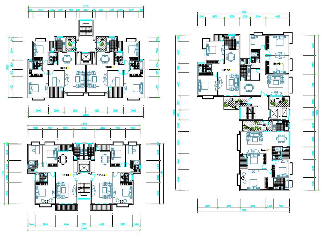
2 And 3 Bedroom Floor Plan With Dimensions
Description
2 And 3 Bedroom Floor Plan With Dimensions; the architecture apartment house layout plan CAD drawing shows 2 BHK AND 3 BHK furnished plan with all dimensions and description details. download the DWG file of the apartment plan and collect the DWG file for CAD reference.
Uploaded by:
