AutoCAD Drawing Electric Plan Of banquet hall DWG File
Description
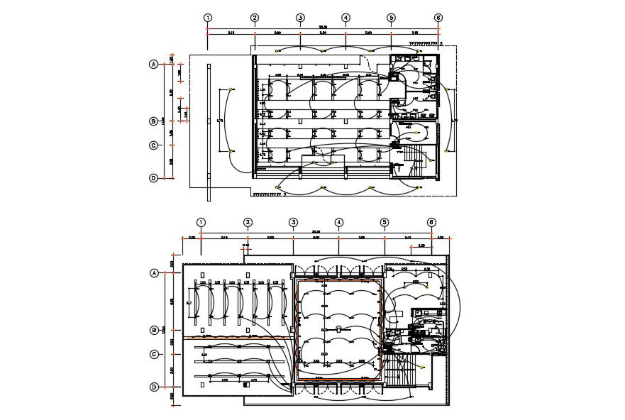
AutoCAD Drawing Electric Plan Of banquet hall DWG File; this is the simple electric layout of the banquet hall includes the main two halls, kitchen, his and her toilets, passages, centerline with working drawing, its a CAD format.
File Type:
DWG
File Size:
4.7 MB
Category::
Electrical
Sub Category::
Architecture Electrical Plans
type:
Gold
Uploaded by:
Rashmi
Solanki

