Electric plan layout Of Commercial Building AutoCAD File
Description
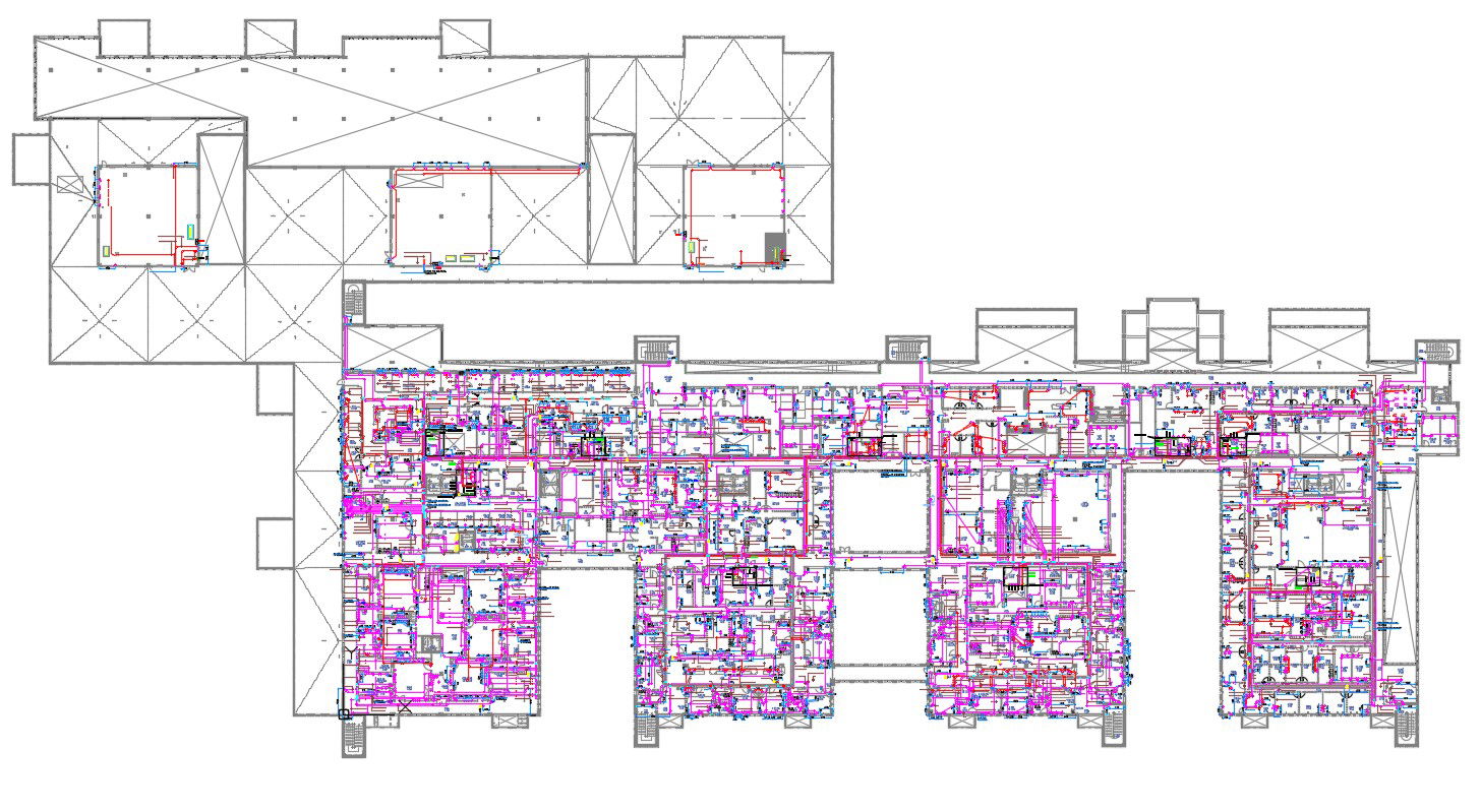
Electric plan layout Of Commercial Building AutoCAD File; this is the electrical plan of commercial building this a four-block of building, and backside attached other building, the service area is backside like stairs, this is the CAD file.
File Type:
DWG
File Size:
25 MB
Category::
Electrical
Sub Category::
Architecture Electrical Plans
type:
Free
Uploaded by:
Rashmi
Solanki

