2D CAD Drawing Beam Section Design And Bars AutoCAD File
Description
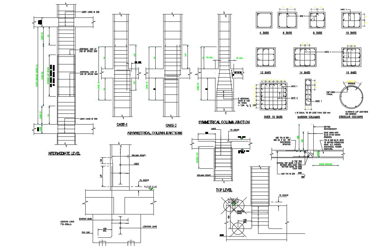
2D CAD Drawing Beam Section Design And Bars AutoCAD File; this is the drawing of beam detail includes intermedial levels, asymmetrical column junction,4,6,8,10,12,14,16, bars joints detail, circular column detail, T beam details, and much more other detail related to beam construction, its a DWG file format.
Uploaded by:
Rashmi
Solanki

