Design Of hydro power plant PDF
Description
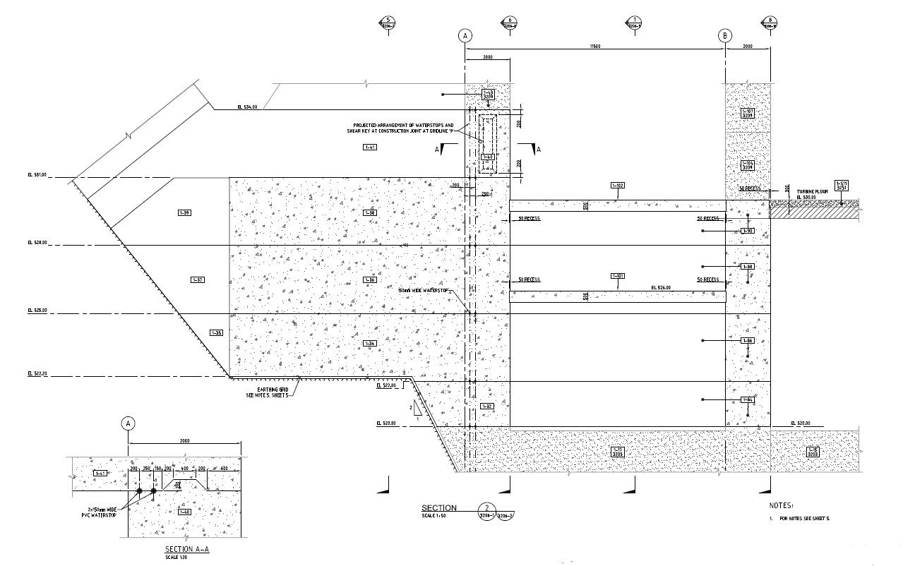
Design Of hydropower plant PDF; Hydropower plants capture the energy of falling water to generate electricity. A turbine converts the kinetic energy of falling water into mechanical energy. Then a generator converts the mechanical energy from the turbine into electrical energy, PDF format.
Uploaded by:
Rashmi
Solanki

