Free Download Factory Elevation PDF File
Description
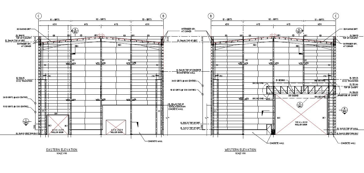
Free Download Factory Elevation PDF File; this is the elevation of the factory, east and west side includes floor levels, truss detail section, main large opening, dimension detail, its a concrete and steel material used in elevation, its a PDF file.
Uploaded by:
Rashmi
Solanki

