Roof Cross Section Design PDF File
Description
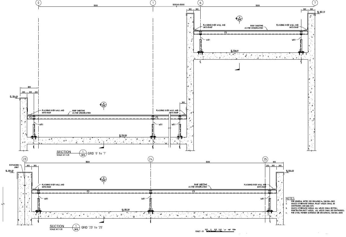
Roof Cross Section Design PDF File; this is the section of the flat roof includes working dimension, section line detail, roof sheeting as per specification, levels, flashing over the wall and into the roof, the roof is fixed with supported RCC wall, its a PDF file.
Uploaded by:
Rashmi
Solanki

