Crane Maintenance Platform Plan With Dimension PDF File
Description
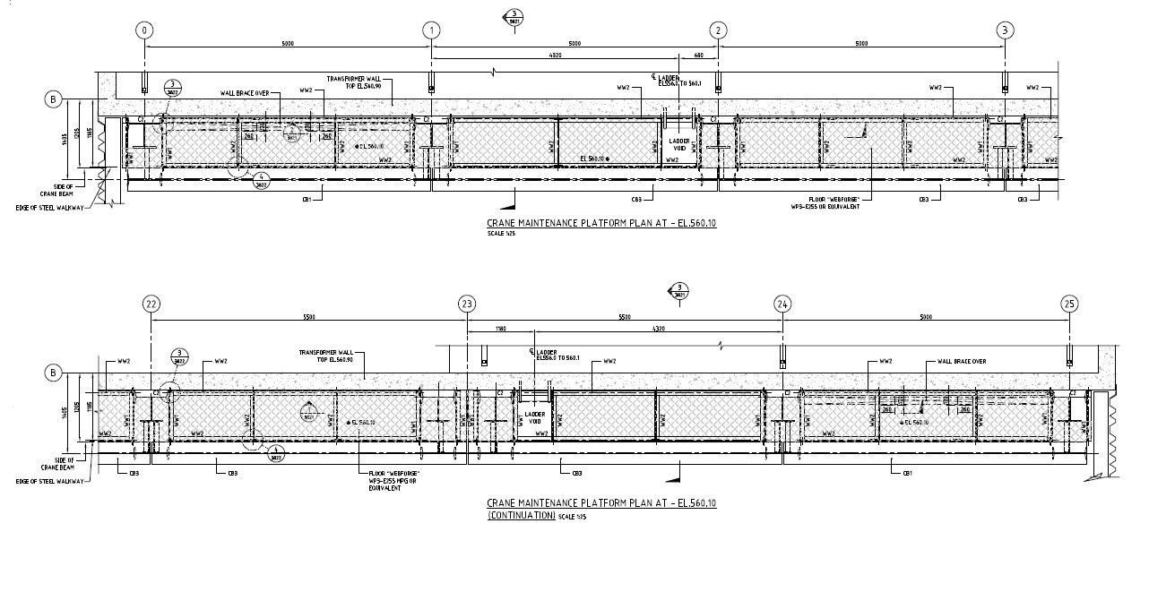
Crane Maintenance Platform Plan With Dimension PDF File; this the plan of the crane maintenance platform includes centerline line, working dimension details, transformer wall details, wall brace over details, crane beam details and much more other details, PDF file.
Uploaded by:
Rashmi
Solanki

