Structure Foundation Design Of Column AutoCAD File
Description
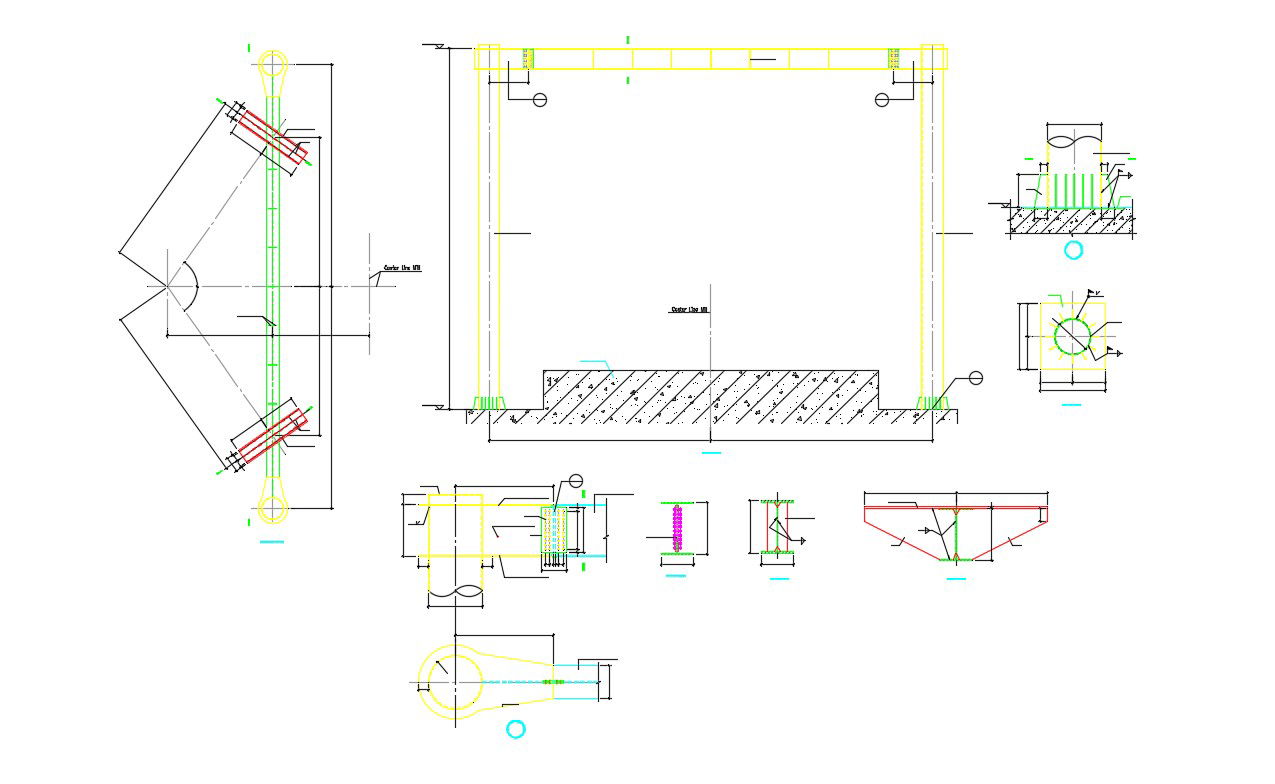
Structure Foundation Design Of Column AutoCAD File; an independent footing is one which is provided under a column or either similar member for distributing the concentrated load in the form of uniformly loads on the soil below. the depth of plain concrete footing can be appreciably reduced by providing reinforcements at its base to take up tensile stresses.
Uploaded by:
Rashmi
Solanki

