2D CAD File Working Drawing Of Commercial Building AutoCAD File
Description
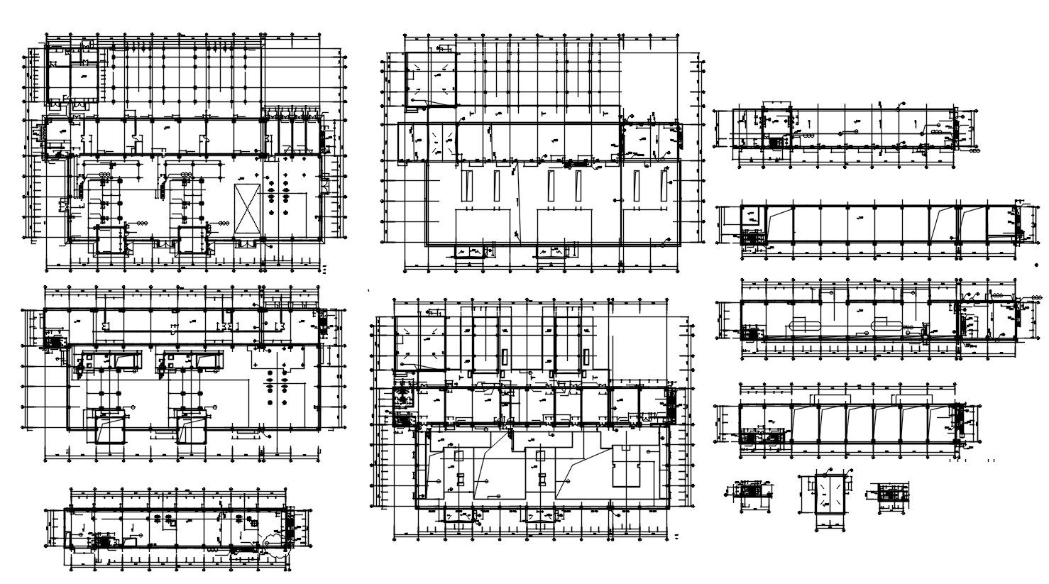
2D CAD File Working Drawing Of Commercial Building AutoCAD File; this is the working drawing of a commercial building, its a centerline plan, dimension drawing, some column structure details, this is the DWG file.
Uploaded by:
Rashmi
Solanki

