Commercial Building Floor Plans With Landscape Design AutoCAD File
Description
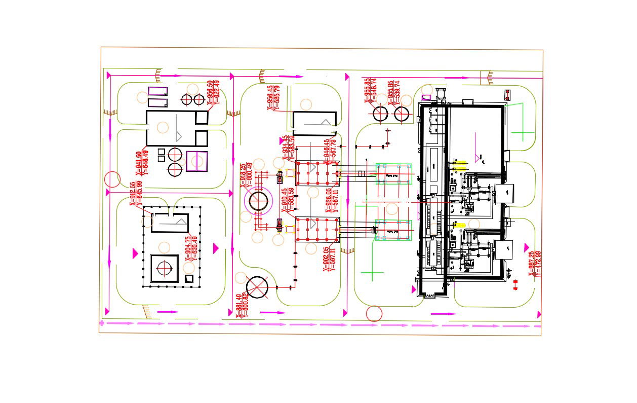
Commercial Building Floor Plans With Landscape Design AutoCAD File; this is the simple ground floor plan of a commercial building with the little beat of landscape design, some structure details, walkway, this is the CAD file format.
Uploaded by:
Rashmi
Solanki

