2D CAD Simple Room Floor Plan With Working Drawing AutoCAD File
Description
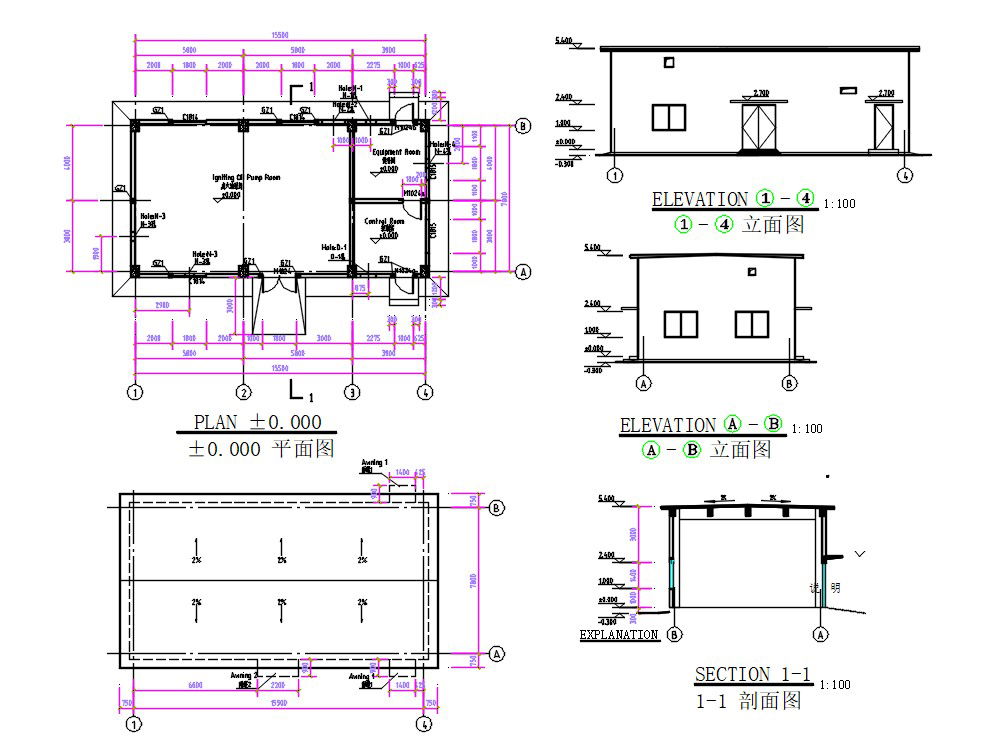
2D CAD Simple Room Floor Plan With Working Drawing AutoCAD File; this is the simple architecture room plan with working drawing, centerline, dimension details, elevation, section and much more other details related to drawing. it's a DWG file.
Uploaded by:
Rashmi
Solanki

