Architecture Roof House Plan AutoCAD file
Description
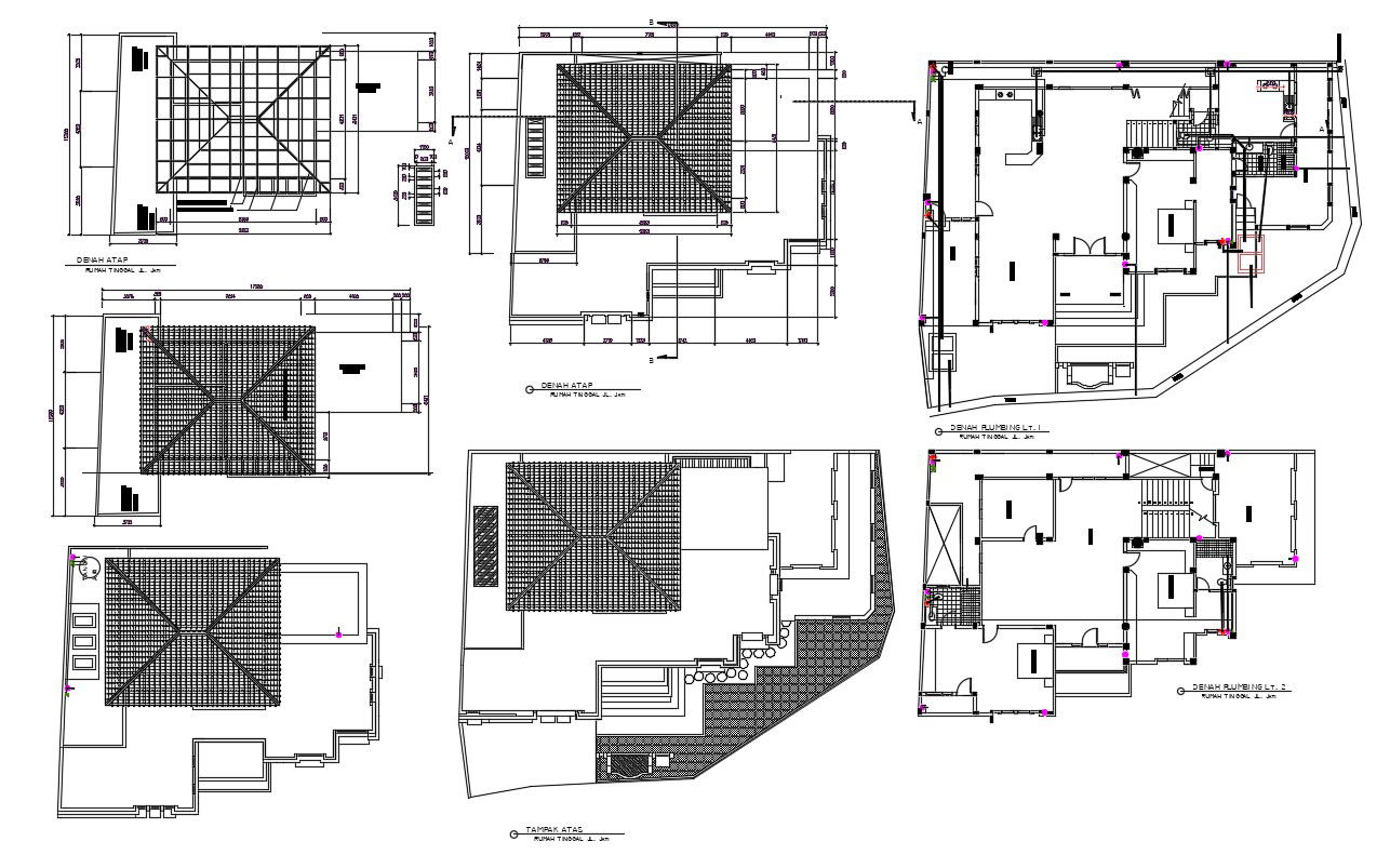
Architecture Roof House Plan AutoCAD file; the architecture residence house project CAD drawing shows ground floor, first floor, and truss roof plan with all dimension detail. download AutoCAD file of house floor plan with landscaping and compound wall design.
Uploaded by:

