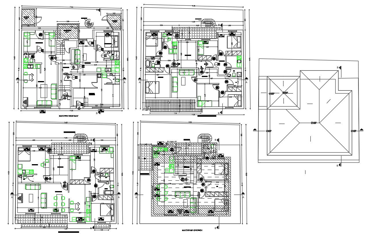
3 Storey Bungalow With Basement Furniture Layout Plan DWG File
Description
3 Storey Bungalow With Basement Furniture Layout Plan DWG File; the architecture residence bungalow floor layout plan CAD drawing shows basement, ground floor, first floor and second-floor furniture layout plan includes multiple bedrooms, kitchen, living room, drawing room, hall and servent room.
Uploaded by:
