LOGIN
HOME
CATEGORIES
UPLOAD FILE
PRICING
HOUSE PLAN
ABOUT US
CONTACT US
Kitchen Design
Home
Categories
Interior Design
Kitchen Interiors
Kitchen Design
Uploaded by:
Fernando
Zapata
View Profile
View Profile
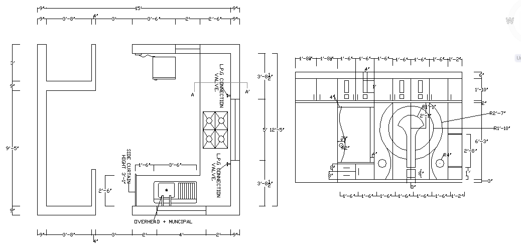
Description
Kitchen Design in Lay-out detail & L.P.G valve connection line, Standing platform, & stove etc detail with dimension & interior design elevation include.
File Type:
DWG
File Size:
126 KB
Category::
Interior Design
Sub Category::
Kitchen Interiors
type:
Gold
Uploaded by:
Fernando
Zapata
View Profile
Download
Add to libary
find Latest
Related
Files