Projects
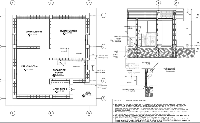
Residential Ground and First Floor Plan with Wall Section Details
MORE DETAILS
40x50 Residential Ground Floor Architectural Layout with Dimensions
Residential Township Master Planning Layout with Road and Plot Design
Two Storey Apartment AutoCAD Plan Set with Full Measured Layouts
Column load equation CAD drawing with bi-apoiada and fixed base
Residential Floor Plan AutoCAD DWG with Reception Kitchen and Bedrooms
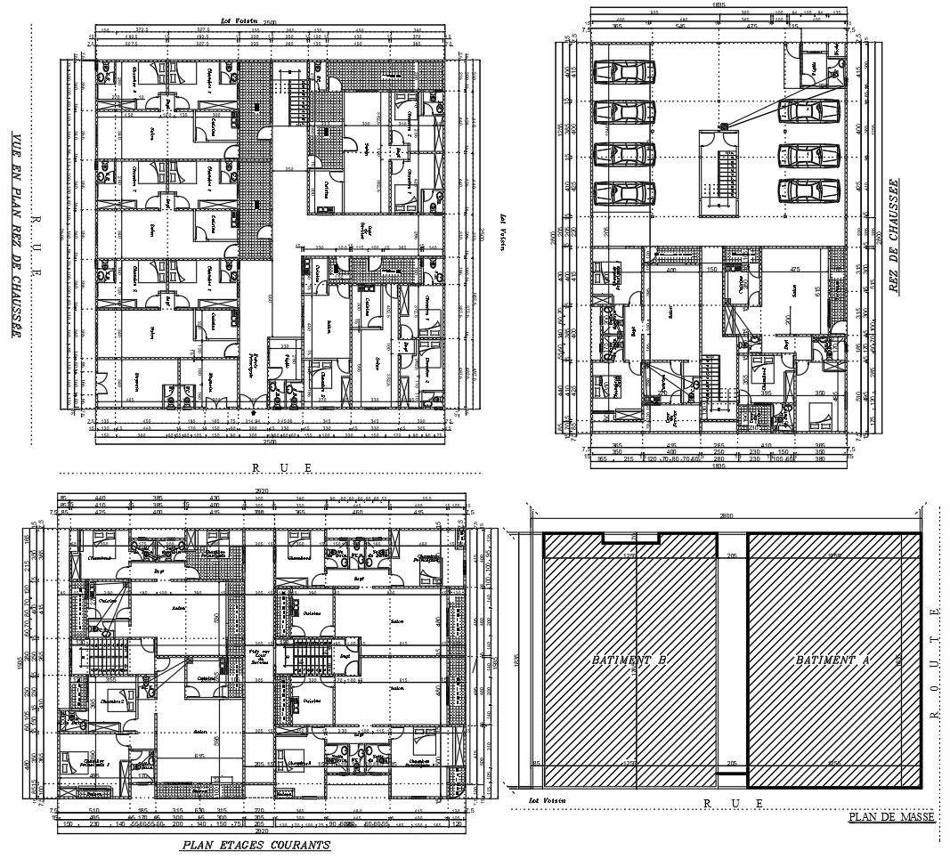
Multi-Unit Residential AutoCAD DWG with 2800 Site and Floor Layouts
Staircase Section AutoCAD DWG with Step and Landing Dimension Details
Private Residence 4 Room AutoCAD Plan with Garage 1500x2040 Layout
Multi-Unit Residential Apartment AutoCAD DWG with Plans and Elevations
Ground and First Floor AutoCAD Plan with Rooms, Lounge, and Terrace
Ground to Third Floor AutoCAD Subdivision Plan with Flat Details