Ravine Restaurant Project AutoCAD File
Description
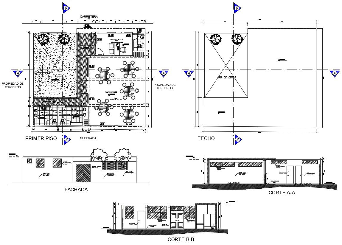
Ravine Restaurant Project AutoCAD File; the architecture ravine restaurant project CAD drawing shows layout plan includes dining area, garden, bathroom and office cabin with furniture detail. download DWG file of the cafeteria and get more detail about sectional and elevation design with dimension details.
Uploaded by:
