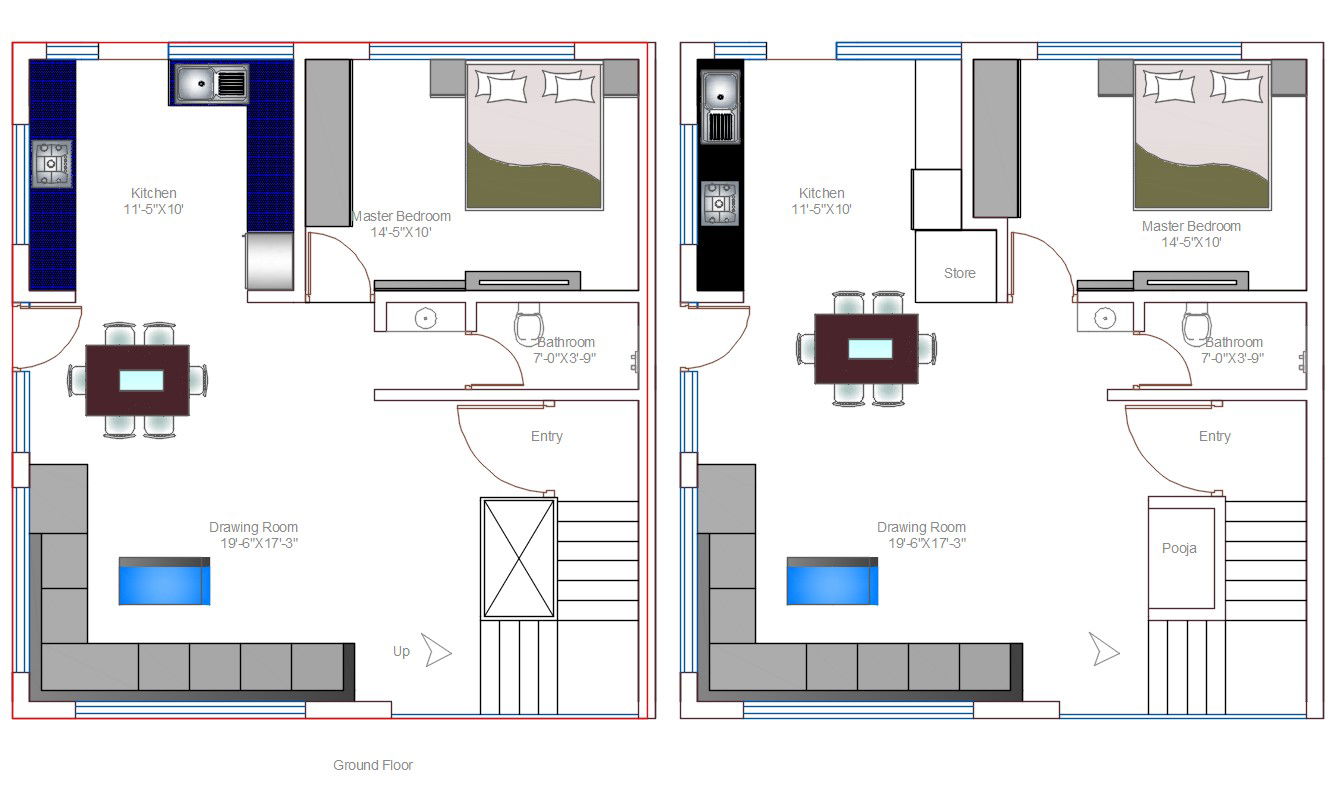
1 BHK Spacious House Plan With 2 Different Options AutoCAD File
Description
1 BHK Spacious House Plan With 2 Different Options AutoCAD File; the architecture residence spacious house furniture layout CAD drawing show 2 different option available. download AutoCAD file of house plan and get more detail of modular kitchen, drawing room, and bedroom with measurement details.
Uploaded by:
