AutoCAD File College Of Applied Sciences With Furniture Layout And Working Drawing
Description
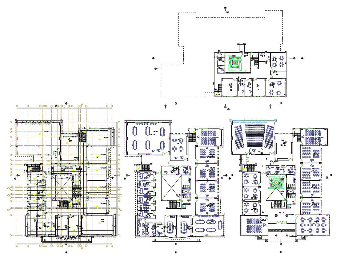
AutoCAD File College Of Applied Sciences With Furniture Layout And Working Drawing; this is the planning of college of applied sciences, includes all floor furniture layout design, working dimension details, centerline plan with texting and dimension, cutout details on it, peripheral wide passage and much more other details related to college plan, all details in DWG format.
Uploaded by:
Rashmi
Solanki

