Lavish Toilet And Bed Room Interior Furniture Design AutoCAD File
Description
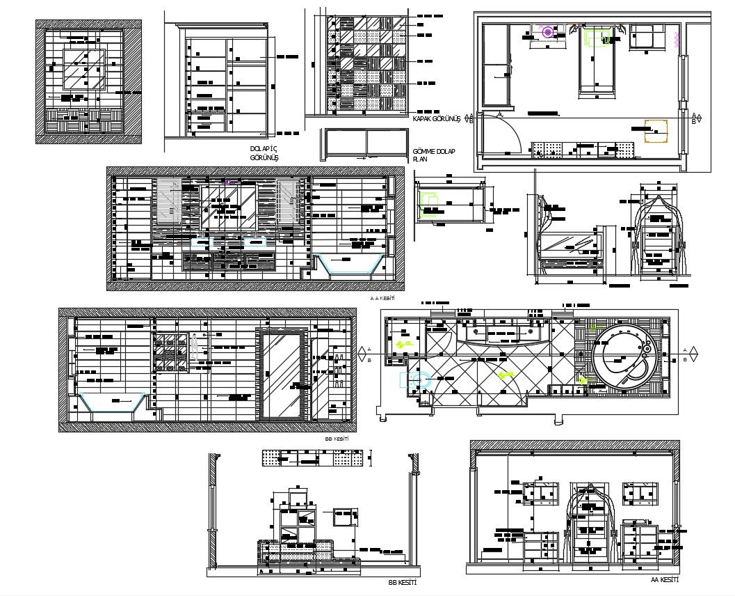
Lavish Toilet And Bed Room Interior Furniture Design AutoCAD File; this is the furniture design of bedroom and huge toilet layout, includes furniture planning of bedroom, internal wardrobe details, wall panelling details, flooring design in toilets, jacuzzi design, shower cubical design, commode and counter basin design, this is all details of the good toilet CAD file format.
File Type:
DWG
File Size:
3.1 MB
Category::
Interior Design
Sub Category::
Bathroom Interior Design
type:
Gold
Uploaded by:
Rashmi
Solanki
