3BHK Simple House Layout Plan With Dimension In AutoCAD File
Description
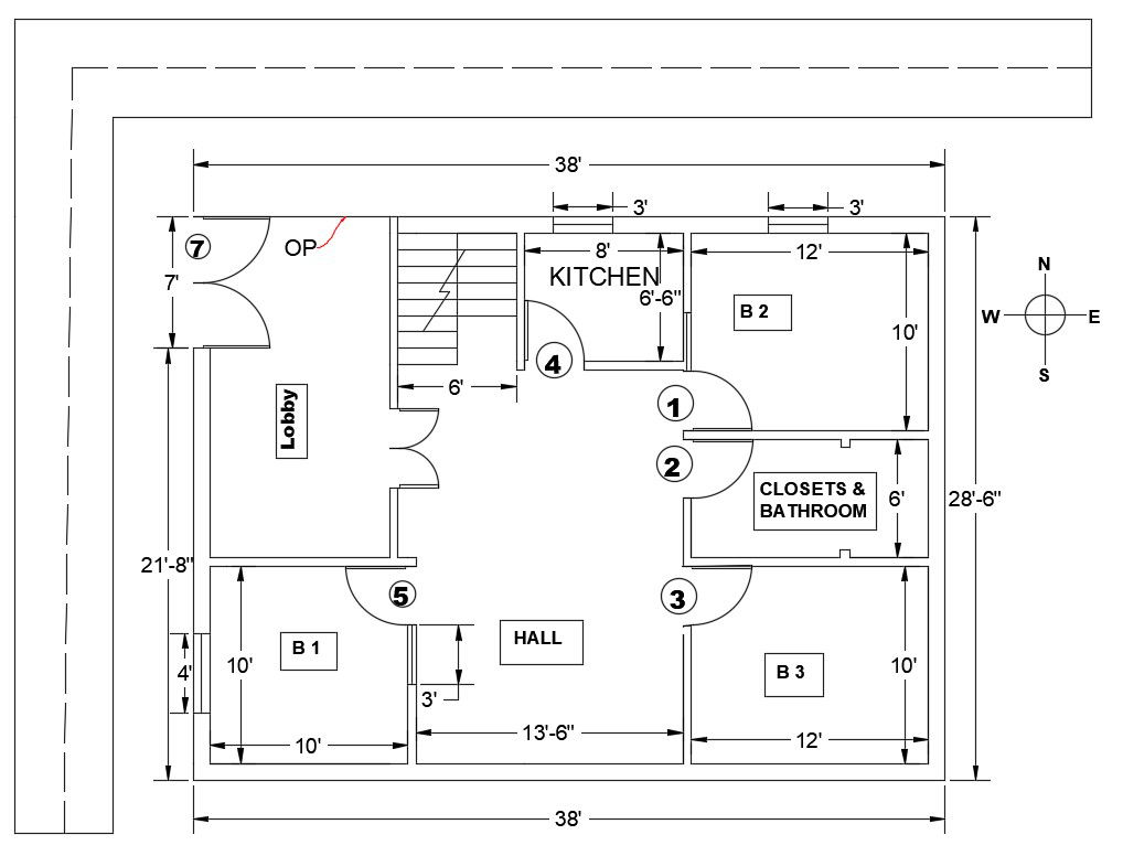
3BHK Simple House Layout Plan With Dimension In AutoCAD File; this is the simple house ground floor plan CAD drawing shows kitchen, hall, lobby, bathroom and 3 bedrooms with dimension and direction details. download free AutoCAD file of house layout plan CAD Drawing.
Uploaded by:

