2D CAD Drawing Of Industrial Building Section And Elevation Design AutoCAD File
Description
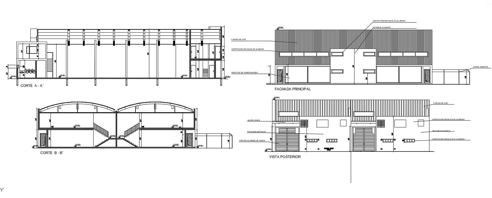
2D CAD Drawing Of Industrial Building Section And Elevation Design AutoCAD File; Download free DWG file of industrial building section and elevation design CAD drawing shows aluminum metal carpentry, blinded glass fixed cloth and revoke plastic fabrication design.
Uploaded by:

