Free Download RCC Water Tank Design With Plan and sections AutoCAD File
Description
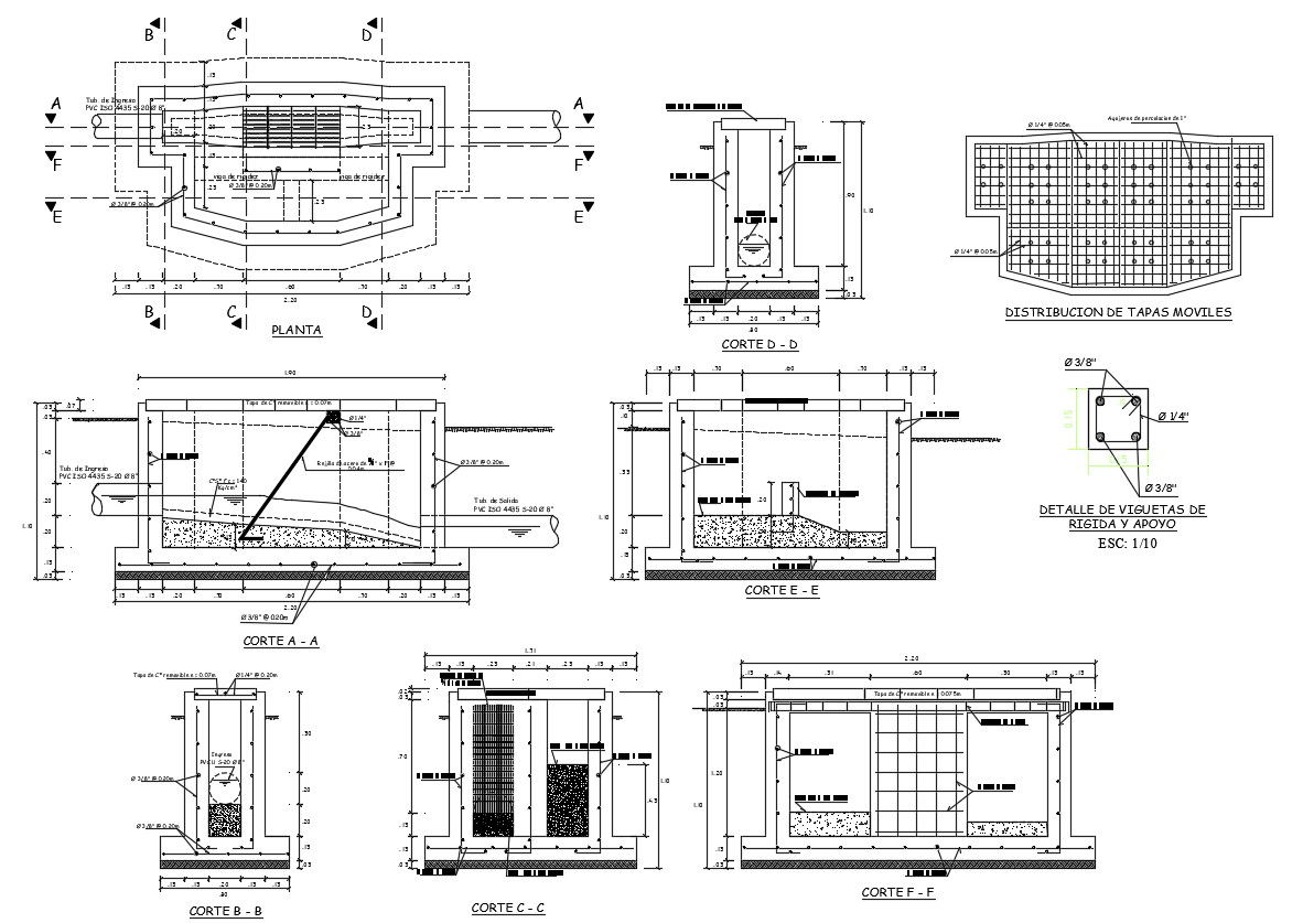
Free Download RCC Water Tank Design With Plan and sections AutoCAD File; this is the CAD drawing of the structure RCC work of Water tank , reinforcement details drawing, bars joints details and much more other details related to Structure,
Uploaded by:
Rashmi
Solanki

