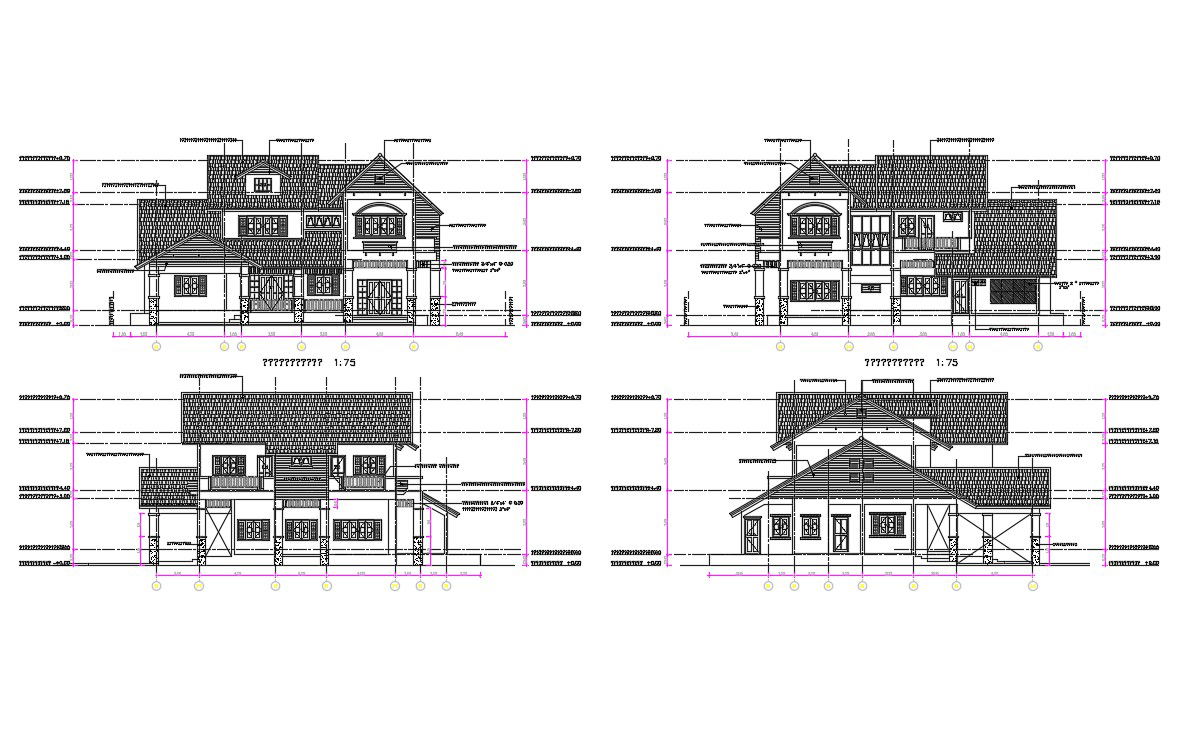
2D CAD Drawing Four Side Elevation Of Traditional Bungalow AutoCAD File
Description
2D CAD Drawing Four Side Elevation Of Traditional Bungalow AutoCAD File; this is the four side elevation of the bungalow with, its an ethnic style of elevation with hatching details, floor levels dimension details, centerline in elevation and much more other details related to good elevation, its a DWG file format.
Uploaded by:
Rashmi
Solanki

