AutoCAD Drawing Of Kitchen Design Plan And Elevation CAD File
Description
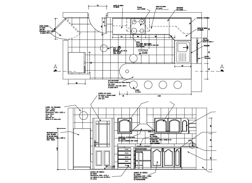
AutoCAD Drawing Of Kitchen Design Plan And Elevation CAD File; this is the cad drawing of kitchen layout with wall elevation design, flooring design, texting design, kitchen platform design, with breakfast table, its a DWG file format,
Uploaded by:
Rashmi
Solanki

