Hotel Room Plan With Fully Furnished And Working Dimension Drawing AutoCAD File
Description
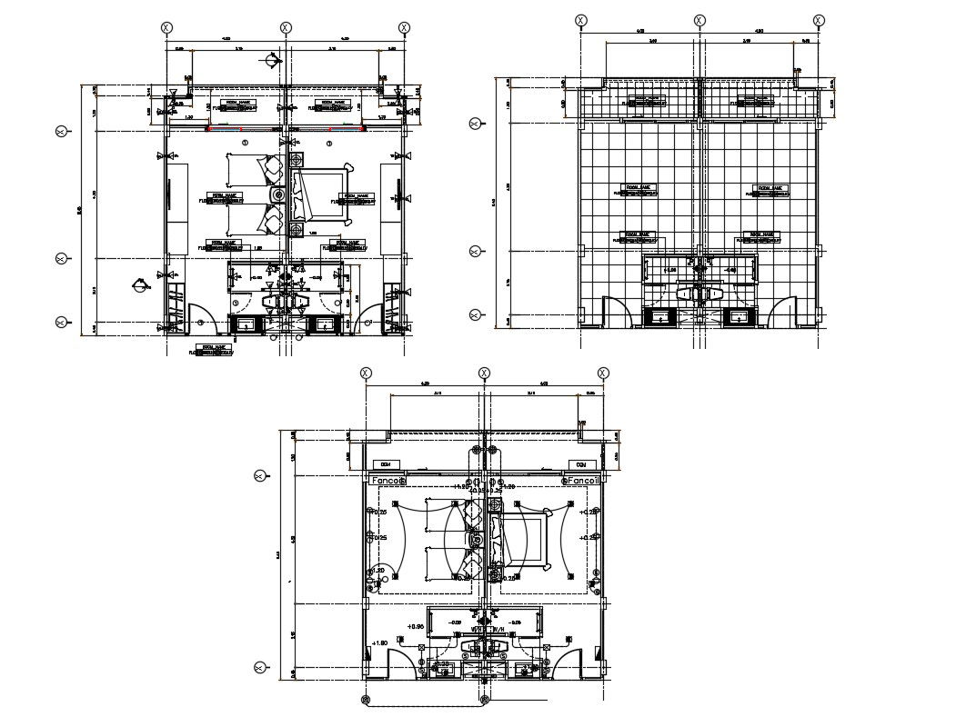
Hotel Room Plan With Fully Furnished And Working Dimension Drawing AutoCAD File; this is the hotel room details plan with furniture layout , working drawing with dimension, flooring details in it, balcony design, toilet layout plan, electrical plan, and much more details, its a CAD file format.
Uploaded by:
Rashmi
Solanki

