AutoCAD Drawing oF Restroom Plan And Elevation Design CAD File
Description
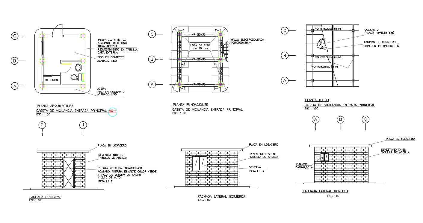
AutoCAD Drawing oF Restroom Plan And Elevation Design CAD File; this is the simple drawing of toilet plan and three side elevation with expose brick detail, texting details, dimension details, foundation details and much more other details related to the toilet, its a DWG file.
Uploaded by:
Rashmi
Solanki

