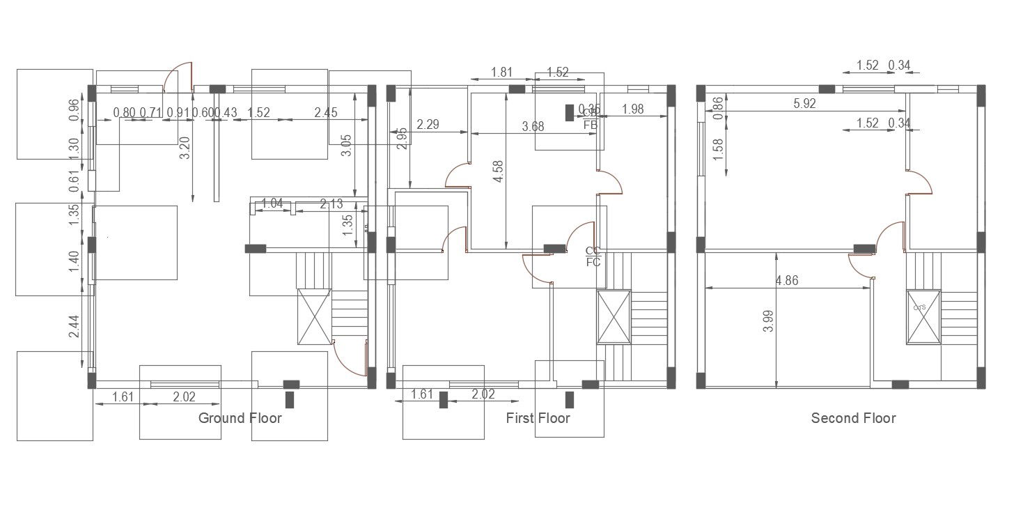
2D CAD Drawing Simple Bungalow Floor Plan With Column Marking AutoCAD File
Description
2D CAD Drawing Simple Bungalow Floor Plan With Column Marking AutoCAD File ; this is the simple plan of the small bungalow with the ground floor , first floor , and second-floor plan includes column marking layout design, its a DWG file format.
Uploaded by:
Rashmi
Solanki

