2D CAD Drawing of Dormitory Plan With Toilet Desing AutoCAD File
Description
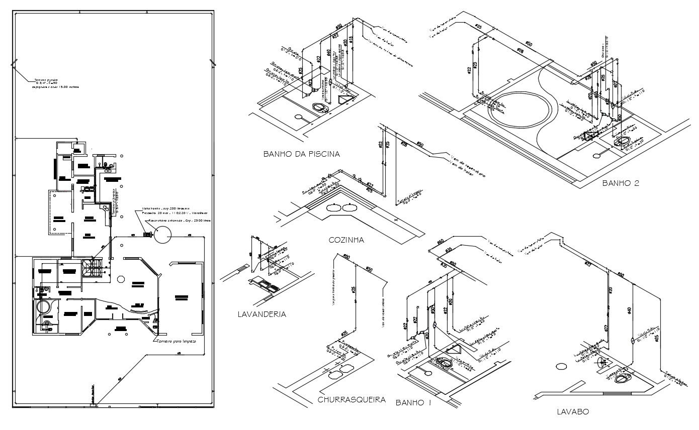
2D CAD Drawing of Dormitory Plan With Toilet Desing AutoCAD File; this is the modern architecture plan of the dormitory with all kinds of necessary rooms and other things, also added toilet layout plan in 3D, text details, and much more other details related to toilets, its a DWG file format.
Uploaded by:
Rashmi
Solanki
