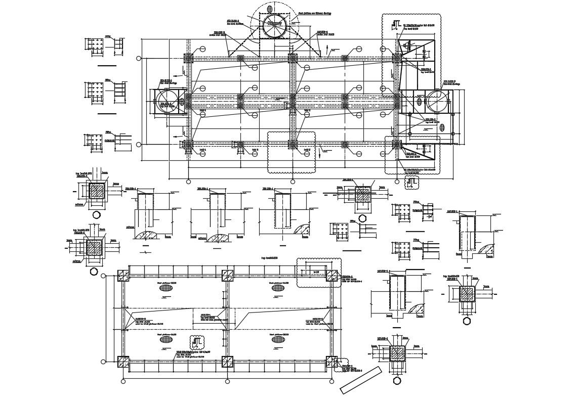
2D CAD File Column Foundation Design With Plinth Beam Section AutoCAD Drawing
Description
2D CAD File Column Foundation Design With Plinth Beam Section AutoCAD Drawing; this is the column foundation detail with some texting details and beam design, steel platform in the plan, some bars joint details, its a DWG file format.
Uploaded by:
Rashmi
Solanki

