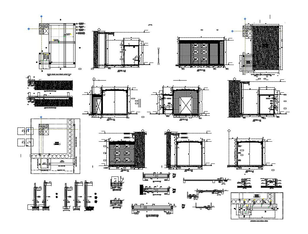
2D CAD Drawing Of Beam And Section Plan With Roof Design AutoCAD File
Description
2D CAD Drawing Of Beam And Section Plan With Roof Design AutoCAD File; this is the structure details plan with slab and beam details, many sections related to building, working drawing dimension, floor levels details , column section details and much more other details related to structure, its a DWG file format.
Uploaded by:
Rashmi
Solanki
