2d CAD Drawing Of Mechanical Engineer College Layout Plan AutoCAD File
Description
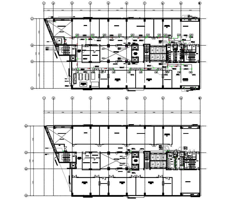
2d CAD Drawing Of Mechanical Engineer College Layout Plan AutoCAD File; the architecture college layout plan CAD drawing shows mechanical lab, computer lab classroom, faculty room, student loung, staircase, lift and toilet with sanitary details. download DWG file of engineer college project Floor plan.
Uploaded by:

