Free Download 2D DWG File Of MS Walkway Bridge With Structure Bars Design AutoCAD Drawing
Description
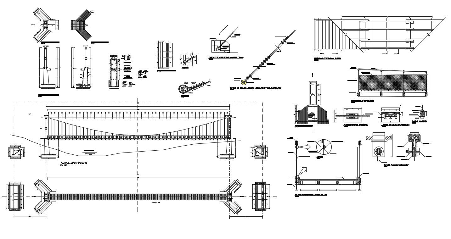
Free Download 2D DWG File Of MS Walkway Bridge With Structure Bars Design AutoCAD Drawing; this is CAD drawing of the simple walkway MS bridge with all kinds of details related to the structure like some foundation details, bars joint details, text details, and much more other details, its a DWG file format.
Uploaded by:
Rashmi
Solanki

