College Building Power And Light Installation Plan AutoCAD File
Description
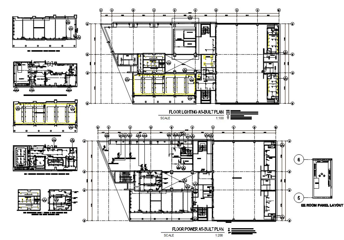
College Building Power And Light Installation Plan AutoCAD File; the college building electrical installation CAD drawing shows a purpose plan of multi-purpose room and executive director's office power and lighting as-built plan. download DWG file of the college building project.
Uploaded by:

