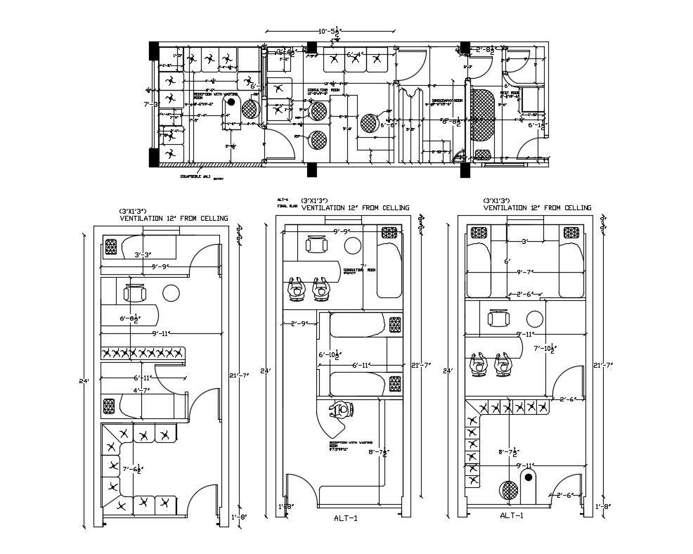
Healthcare Clinic Floor plan With 3 Different Option In AutoCAD File
Description
Healthcare Clinic Floor plan With 3 Different Option In AutoCAD File; the health care furniture layout plan CAD drawing shows different floor plans includes a reception with the waiting room, consulting room, sonography and restroom with all dimension detail. download AutoCAD file of clinic office plan with different design options available in CAD drawing.
Uploaded by:

