Download Small Clinic Layout Plan With Dimension CAD Drawing
Description
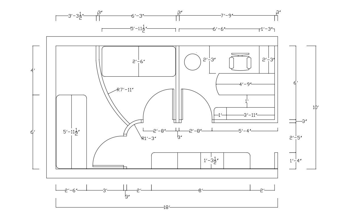
Download Small Clinic Layout Plan With Dimension CAD Drawing; 2d CAD drawing of clinic layout plan CAD drawing shows furniture, wall and dimension detail in AutoCAD format. download free DWG file of health care clinic plan.
Uploaded by:
