Tips For 2d Cad Drawing Of School Planning With Working Drawing Dimension Autocad File
Description
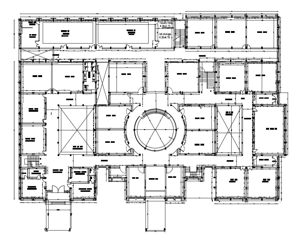
Tips For 2d Cad Drawing Of School Planning With Working Drawing Dimension Autocad File; this is the planning of school layout with working drawing, in this plan added waiting room , clerical office , principal office and room, many classrooms, account office, audiovisual room, attached toilets, common toilets, big passage to connect all area, circular stair in middle, and cutout, this is the DWG file format.
Uploaded by:
Rashmi
Solanki

