Tiles Shop Furniture Layout Plan in DWG Format for Retail Design
Description
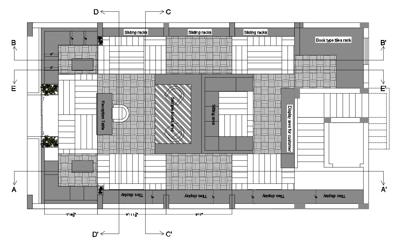
This AutoCAD DWG file provides a comprehensive layout plan for a tiles shop, including detailed furniture arrangement, flooring design, various hatching patterns related to flooring, plantation elements, and precise dimensioning and text annotations. Ideal for architects, interior designers, and retail planners, this drawing offers a practical reference for designing functional and aesthetically pleasing retail spaces. The inclusion of detailed hatching and dimensioning ensures accuracy and clarity in the design, facilitating effective communication and implementation.
Uploaded by:
Rashmi
Solanki

